Die Immobilie vereint auf ca. 205 m² Wohnfläche stilvolle Architektur, hochwertige Ausstattung sowie eine durchdachte Raumaufteilung und bietet modernes Wohnen in einer ruhigen, naturnahen Umgebung und überzeugt durch Komfort sowie Exklusivität.
Im Erdgeschoss erwartet Sie ein offener, lichtdurchfluteter Wohn- und Essbereich mit angrenzender Küche. Große Fensterfronten sorgen für eine freundliche Atmosphäre und einen schönen Blick in den Vorgarten. Des Weiteren finden Sie im Erdgeschoss ein Kinderzimmer mit angrenzender Spielecke, das große Elternschlafzimmer mit eigener Ankleide und separatem WC sowie direktem Zugang zum Pool und zwei große und hochwertig ausgestattete Badezimmer.
Das Obergeschoss verfügt über ein großes Wohn- Esszimmer, welches zur Zeit als Bar genutzt wird, sowie ein Schlafzimmer und ein Büro. Ein gut ausgestattetes Badezimmer und eine separate Küche runden das Angebot auf dieser Etage ab. Auf dem Balkon genießen Sie ebenfalls den Blick in den großen Garten mit schönem Baumbestand und gemütlichen Sitzmöglichkeiten.
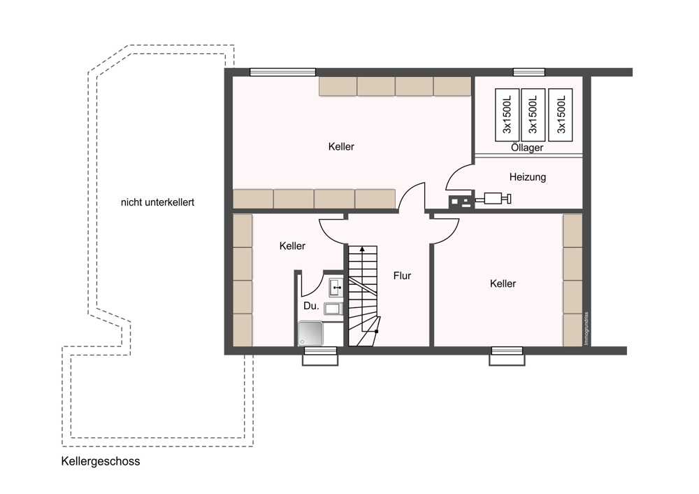
Ein voll ausgebauter Keller schafft zusätzlichen Raum für Hobbys, Werkstatt oder Lagerfläche. Ergänzt wird das Haus durch eine große Doppel-Garage, ein Carport und eine Einzelgarage. Der gesicherte Einfahrtsbereich erlaubt ungestörtes Wohnen in ruhiger Atmosphäre und bietet Platz für mehrere Fahrzeuge.
Besonders hervorzuheben ist der weitläufige Garten, der Privatsphäre schafft und vielseitige Nutzungsmöglichkeiten eröffnet. Im Jahr 2017 wurde eine hochwertige und sehr aufwendig gestaltete Poolanlage mit Gegenstromanlage und Dach errichtet, die sich harmonisch in den Außenbereich einfügt und höchsten Qualitätsansprüchen genügt.
Die Immobilie steht für exklusives Wohnen auf hohem Niveau – die ideale Immobilie für Familien oder Paare, die Wert auf Privatsphäre, Qualität und stilvolles Ambiente legen.
Mit liebevoller Vorbereitung und überschaubarem Aufwand entsteht ein Zuhause, das jeden Tag Wärme und Geborgenheit schenkt und Ihren individuellen Vorstellungen entspricht.
- Nutzungsmöglichkeit als Ein- oder Zweifamilienhaus
- Böden: Marmor, Fliesen, Teppich
- elektrische Rollläden mit Funk-Fernsteuerung
- 2-fach isolierte Fenster, teilweise erneuert
- Kamin
- Anbau aus dem Jahr 2009
- hochwertiges Badezimmer im EG mit übergroßer Dusche
- hochwertiges Badezimmer im Anbau mit übergroßer Dusche und Whirlpool-Badewanne
- zwei Einbauküchen
- Heizung: Öl mit 3x 1.500 L Tanks (erneuerungsbedürftig)
- Hochwertiger Außenpool mit Gegenstromanlage und mobiler Überdachung
Courtagepassus
Der Maklervertrag mit uns und/oder unserem Beauftragten kommt durch schriftliche Vereinbarung oder durch die Inanspruchnahme unserer Maklertätigkeit auf der Basis des Objekt-Exposés und seiner Bedingungen zustande. Die Käufercourtage in Höhe von 3,57 % auf den Kaufpreis einschließlich gesetzlicher Mehrwertsteuer ist bei notariellem Vertragsabschluss verdient und fällig. Die Firma Koba Plan & Ing. Atrium GmbH und ggf. deren Beauftragte erhalten einen unmittelbaren Zahlungsanspruch gegenüber dem Käufer (Vertrag zugunsten Dritter, § 328 BGB). Grunderwerbsteuer, Notar- und Gerichtskosten trägt der Käufer. Alle Angaben sind ohne Gewähr und basieren ausschließlich auf Informationen, die uns von unserem Auftraggeber übermittelt wurden. Wir übernehmen keine Gewähr für die Vollständigkeit, Richtigkeit und Aktualität dieser Angaben. Zwischenverkauf bleibt vorbehalten. Sollte das von uns nachgewiesene Objekt bereits bekannt sein, teilen Sie uns dieses bitte unverzüglich mit. Die Weitergabe dieses Exposès an Dritte ohne unsere Zustimmung löst gegebenenfalls Courtage- bzw. Schadensersatzansprüche aus. Im Übrigen gelten unsere allgemeinen Geschäftsbedingungen für die Rechtsbeziehung zwischen Ihnen und der Koba Plan & Ing. Atrium GmbH.
Die Immobilie befindet sich in Herdecke-Ende in einer ruhigen, naturnahen Lage, die Lebensqualität und städtische Anbindung ideal vereint. Öffentliche Verkehrsmittel sind bequem zu Fuß erreichbar: Mehrere Bushaltestellen verbinden das Herdecker Stadtzentrum sowie die umliegenden Städte, während der nahegelegene Bahnhof direkte Zugverbindungen nach Dortmund und Hagen bietet – ideal für Pendler. Auch die Autobahnen A1 und A45 sind in wenigen Minuten erreichbar, wodurch weitere Ziele im Ruhrgebiet schnell erreichbar sind.
Die Umgebung überzeugt durch eine hervorragende Infrastruktur. In der Nähe befinden sich Supermärkte wie REWE, EDEKA und Lidl, diverse Einzelhandelsgeschäfte, Apotheken, Bäckereien und weitere Einrichtungen des täglichen Bedarfs. Familien profitieren von der guten Bildungslandschaft: Mehrere Kindergärten, Grundschulen sowie weiterführende Schulen wie das Friedrich-Harkort-Gymnasium und die Realschule Herdecke sind in kurzer Zeit erreichbar. Ergänzend erweitern die Schulen in Dortmund und Hagen das Bildungsangebot.
Auch das Freizeit- und Erholungsangebot ist vielfältig. Die Nähe zur Ruhr und zu den umliegenden Wäldern lädt zu Spaziergängen, Wanderungen und Radtouren ein. Sportvereine, das Freizeitbad sowie zahlreiche kulturelle Angebote sorgen für zusätzliche Abwechslung. Die Kombination aus naturnaher Umgebung, ruhiger Wohnlage und optimaler Verkehrsanbindung macht die Immobilie besonders attraktiv für Familien und Paare, die Wert auf Lebensqualität und eine ausgewogene Balance zwischen Natur und Stadtleben legen.

